上周Autodesk预告将会推出Android版的AutoCAD软件,现在这款专业设计制图软件的Android版本已经在官方电子市场上架,并提供免费下载。
下载Android版AutoCAD
下载地址http://www.cr173.com/soft/25875.html
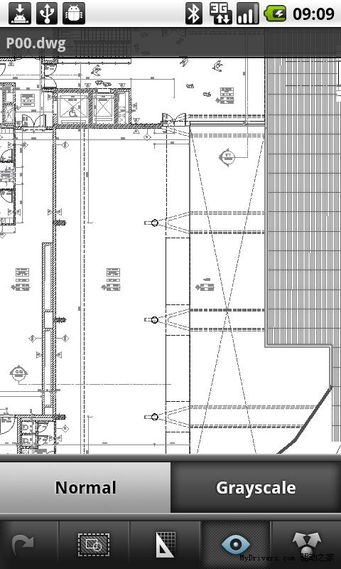
移动版AutoCAD是其桌面版的延伸,可以让设计人员随时随地的查看、编辑、分享自己的DWG文件,这款软件支持Android手机和平板机安装使用,可以提供一个简化的观看、编辑、标记界面和工具。
用户可以使用移动版AutoCAD从电子邮件打开设计图纸,或者从网络上同步自己的文件,也可以直接从AutoCAD绘图软件传送至移动设备。如果外出时没有网络连接,图纸也可以保存在本地。
需要注意的是,如果使用网络同步功能的话,用户需要有一个AutoCAD账户,否者这款软件不能创建新的图纸。
AutoCAD移动版应用需要Android 2.1以上版本系统支持,推荐1GHz处理器和512MB RAM设备使用。
二维码下载:









下载 
下载 
下载
下载
下载
下载 
下载 
下载
下载 
下载
下载 
下载
下载
下载
下载
下载
喜欢
顶
难过
囧
围观
无聊





